RIF. 17/01 CASA A SCHIERA FALCIANO

Descrizione

🏡 VILLETTA A SCHIERA PANORAMICA SU TRE LIVELLI CON GARAGE E TAVERNETTA 🌅

📍 Zona panoramica e residenziale – In contesto tranquillo ma vicino a tutti i principali servizi, proponiamo in vendita luminosa casa a schiera disposta su tre livelli, ideale per famiglie che cercano ampi spazi e comfort.

✨ SUPERFICIE:
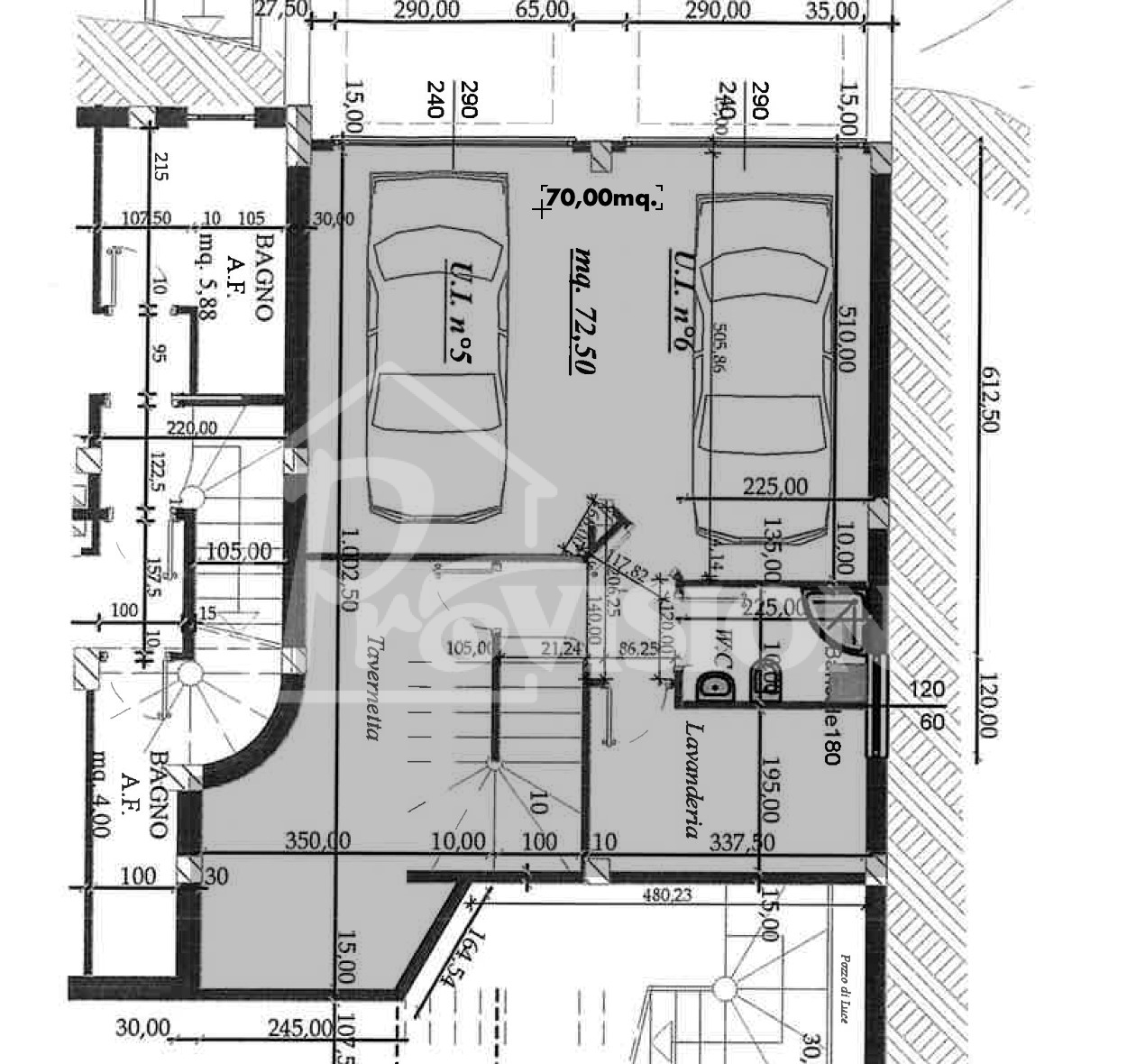
• Piano strada 72,50 MQ ca
• Zona giorno 61 MQ ca
• Zona notte 61 MQ ca
• 32 MQ ca di balconi

🔹 COMPOSIZIONE DELL’IMMOBILE

âś… Piano strada (72,50 MQ ca)
• Garage
• Bagno completo
• Lavanderia
• Tavernetta

âś… Zona giorno (61 MQ ca)
• Cucina
• Ampio soggiorno
• Servizi

âś… Zona notte (61 MQ ca)
• 3 camere da letto
• Bagno
• Ripostiglio

🔹 PLUS DELL’IMMOBILE
âś… 32 MQ ca di balconi
âś… Molto luminosa
âś… Vista panoramica
âś… Spazi ampi e ben distribuiti
âś… Zona vicina a scuole, negozi e servizi

đź’Ž La soluzione perfetta per chi desidera indipendenza, metrature generose e una posizione panoramica senza rinunciare alla comoditĂ  dei servizi.

📞 Contattaci per maggiori informazioni o per fissare una visita!

Condividi:

Dettagli Aggiuntivi

document.addEventListener("DOMContentLoaded", function () { });

CONTATTACI

Richiedi informazioni

Confrontare