RIF. C3/20 IMMOBILE STORICO BORGO

Descrizione

🏛️ IMMOBILE DI PRESTIGIO NEL CENTRO STORICO DI BORGO MAGGIORE – GRANDE FASCINO STORICO

📍 Nel suggestivo centro storico di Borgo Maggiore, proponiamo immobile di prestigio attualmente ad uso commerciale, ma ideale anche come soluzione abitativa di alto livello o come investimento di valore.

✨ SUPERFICIE:
• 371 MQ ca complessivi
• Immobile distribuito su più livelli

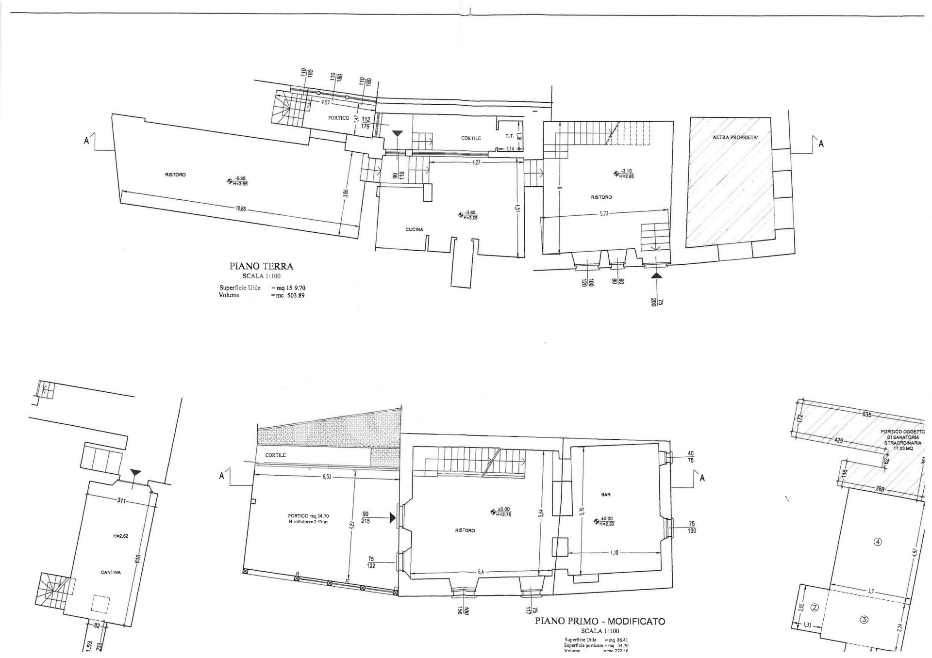
🔹 DISTRIBUZIONE DEGLI SPAZI

🏛️ Piano primo
• 85 MQ ca
• Porticato di circa 37 MQ ca con affaccio sulla zona pedonale

🏛️ Piano terra ammezzato
• 49 MQ ca

🏛️ Piano terra
• Cucina e disimpegno di circa 34 MQ ca
• Terrazzo esterno di circa 13 MQ ca

🏛️ Piano secondo
• 47 MQ ca

🏛️ Piano primo sottostante
• Ingresso e disimpegno di circa 45 MQ ca

🏛️ Piano interrato
• Suggestiva grotta in pietra di circa 49 MQ ca, elemento unico e di grande fascino storico

🔹 PLUS DELL’IMMOBILE

âś… Posizione nel centro storico di Borgo Maggiore
âś… Immobile di ampia metratura (371 MQ ca)
✅ Caratteristici elementi d’epoca
âś… Porticato con affaccio sulla zona pedonale
âś… Terrazzo esterno
âś… Grotta storica in pietra
âś… Ideale sia come abitazione di prestigio sia come attivitĂ  commerciale
âś… PossibilitĂ  di realizzare una struttura ricettiva con ottimo rendimento, grazie alla posizione centrale e alla zona ben servita
âś… Solida opportunitĂ  di investimento

đź’Ž Un immobile unico, ricco di fascino storico e carattere, perfetto per chi desidera uno spazio esclusivo nel cuore di Borgo Maggiore o un investimento ad alto potenziale.

📞 Contattaci per maggiori informazioni o per fissare una visita!

Condividi:

Dettagli Aggiuntivi

document.addEventListener("DOMContentLoaded", function () { });

CONTATTACI

Richiedi informazioni

Confrontare